-
大視野立體視顯微鏡WYT-DP1視場顯微鏡是一種視場廣闊的新型顯微鏡,更符合人機工學?,眼睛持久觀察不易疲勞。同時能兼顧圖像清晰,觀察舒適,操作方便,立體感強的特性。可同時配置三個物鏡,方便更換不同的物鏡倍率。具有視場寬廣,分辨率高,立體感強,景深大,成像清晰等特點。廣泛用于生物解剖、農林業的種子檢查篩選、 公安部門的刑偵檢測,電子精密部件裝配檢修,紡織業的品質控制、文物、郵票的輔助鑒別及各種物質表面觀察等領域。
◆性能特點:
1、立體光學成像,提供2X、4X、6X、8X、10X、15X的物鏡可選。
2、可同時安裝三個物鏡,轉換物鏡轉塔能方便地變換不同的倍率。
3、可在自然坐姿狀態下觀察,頭部頸部可自由活動,眼睛不疲勞。
4、超長工作距離,具有超大的景深和視野,操作者不受任何限制。
◆典型應用:
1、教學 2、生物解剖 3、農、林、牧、 4、機械加工業
5、刑偵檢測 6、電子精密部件裝配檢修7、線路板焊點檢測
8、紡織、印刷、建筑 9、考古 10、各種材料表面觀察
一、顯微鏡參數:
序號
名稱
技術參數
01
物鏡
2X 工作距離:208mm 物方線視場: 68mm
4X 工作距離: 98mm 物方線視場: 68mm
6X 工作距離: 98mm 物方線視場:22.7mm
02
觀察頭
觀察頭可自由轉動,伸展范圍850mm
03
總支架
支架穩重可靠,滑動自如,垂直580mm
04
底座
底座尺寸400X300X20mm
05
立臂
立臂高度500mm 行程200mm
06
光源
外置LED調節器,獨立開關,亮度可調,發熱量低,壽命長
07
儀器重量
凈重:5.0kg 毛重:6.5kg
08
儀器尺寸
儀器尺寸30X51X53.5(cm)
二、可選鏡頭參數:
編號
物鏡倍率
工作距離(mm)
物方線視場
01
8X
58
17
02
10X
46
13.6
03
15X
50
9.1
04
6X(SL)
115
22.7
一、顯微鏡選購件:
序號
名稱
技術參數
01
光源
雙支冷光源
02
支架
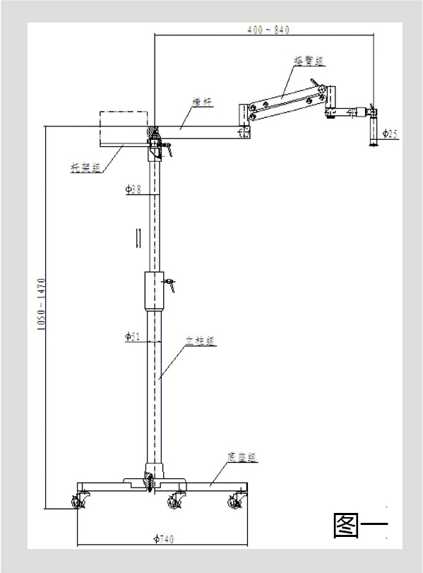
落地式支架(圖1)
03
支架
擺臂式支架(圖2)


序號
名稱
主要技術參數
數量
單位
01
顯微鏡主機
1
臺
02
物鏡
2X 4X 6X
3
只
03
目鏡
1
個
04
外置照明調節器
1
個
07
載物臺
1
個
08
電源線
1
根
09
隨機附件
裝箱單,說明書,合格證,保修卡
各1
份

全國服務熱線